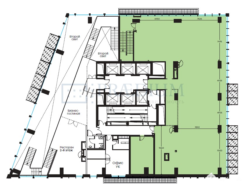
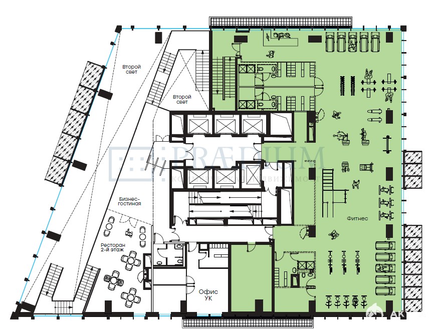
Продажа помещения свободного назначения

Калужская, 9 мин

Беляево, 11 мин

Коньково, 19 мин

221 892 500 ₽

425 082 ₽ за м²

522 м²
Площадь
2/18
Этаж

Поделиться

Добавить в избранное

ID: o87717
Уважаемый Покупатель, предлагаем Вам приобрести помещение свободного назначения 522.1 м² на 2 этаже в собственность на выгодных условиях.

Приточно-вытяжная вентиляция. Центральное кондиционирование. Пожарная сигнализация. Интернет, телефония. Охрана. Видеонаблюдение. Система контроля доступа. Лифты: 5 пассажирских. Подземная парковка.

ЮЗАО Москвы. В 7 минутах от м. Калужская

Быстро реагируем на обращения, организуем встречу на объекте в удобное для Вас время, направим план помещения и ответим на все возникшие вопросы!
Звоните сейчас и получите лучшие условия на рынке!

Дата обновления: 27 сентября 2025

Помещение Место на рынке